The Blackwood
A clever use of space
The Blackwood
- Configuration: 1 bedroom + 1 bathroom
- Building Size: 54 sq/m
- Overall Size: 69.7 sq/m
Living in a small home doesn’t mean compromising the amenities and functionalities of a full-size home. This model optimises clever usage of space and light for ease, comfort, and versatility. Use as a luxe retreat, a home office with meeting space, an investment property, or extra accommodation for visiting friends and family.
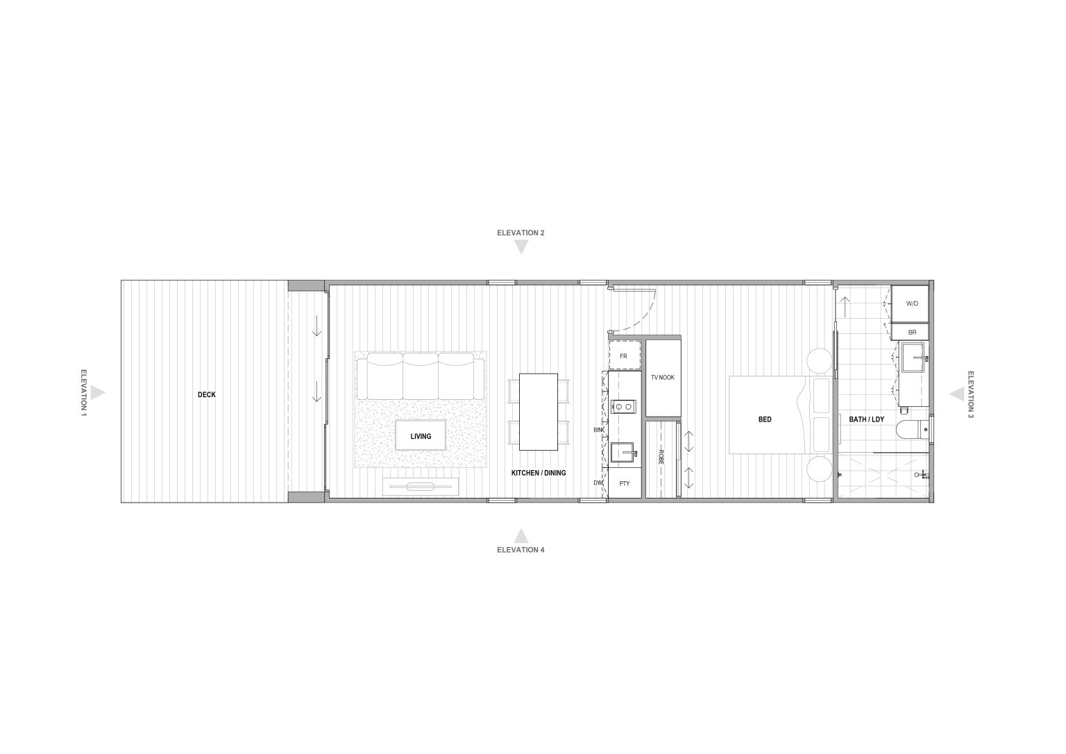
Bring the Blackwood to life
Customise this Redipods layout to suit your lifestyle. The combined living, dining and kitchen area offers expansive landscape views through a full wall of glass sliding doors. Personalise your generous bedroom, which includes a TV nook and built in robe, and make the most of the practical bathroom and laundry, both accessed via sliding doors.
Combined living, modular to your needs
A combined living, dining and kitchen area boasts unfettered landscape views thanks to a wall of glass sliders. Vertical windows on each side of the space allow natural light to filter into the floor plan and shutters allow complete darkness when required. A sliding door opens to a generous-sized bedroom with a TV nook and built-in robe. Another slider accesses a bathroom and laundry.
A look to the exterior
A generous timber deck and floor-to-ceiling glass sliders combine for an impressive entry. A pitched ceiling provides a sense of spaciousness and volume, and dramatic Colorbond steel clads the entire length of the home, wrapping its roof to create a strong, seamless roofline and continuous corners ideal for verdant environments and those at risk of bushfires.
Explore other Redipods models
The Gascoyne
Our largest model, the Gascoyne has a classic contemporary form and flexible layout. This family-friendly cabin is ideal for a winery, bush block, or caravan park.
The Fitzroy
The Fitzroy model is a firm favourite and is built perfectly for a holiday home, a retreat, or extra space for growing families or visitors.
The Avon
Despite its small footprint, the Avon is perfect for transforming your dream country getaway, as an investment property, backyard office, or guest house.
The Swan
What the Swan lacks in magnitude more than makes up for in great design. It is the perfect nature getaway or backyard bunker for teens.
The Franklin
Meet our pocket rocket, the Franklin, integrating a flexible floor plan. An ideal studio, exercise space, home office, or extra bedroom.
The Canning
Architecturally designed, the Canning optimises open-plan living space. It’s the ideal Airbnb, coastal weekender, an office, or teenage retreat.
