The Swan
An ideal retreat for any setting
The Swan
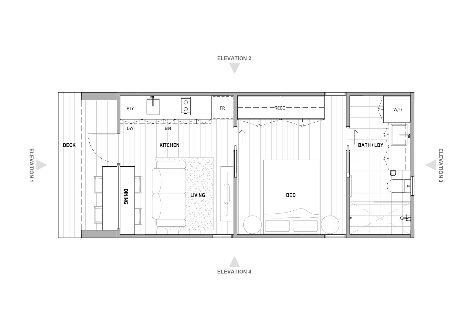
- Size: 4m x 9.1m | 5.4sq/m deck | 35.2sq/m external
- Configuration: 1 bedroom + 1 bathroom
The Swan model may be small in size; however, it makes a big impact with its exceptional design. Functional, stylish, and comfortable, this cabin offers a unique blend of openness and connection to the outdoors.
Whether you’re looking for a coastal retreat, a granny flat, or a backyard bunker for teens, or visitors, The Swan is the ideal choice.
Adaptable and architecturally designed
An adaptable, architecturally designed model, The Swan is divided into two main spaces with a sliding door that allows for privacy or merges the spaces together. Entry is through a glass sliding door into the kitchen, living and dining space. A servery window off the inbuilt dining table connects the kitchen and the outdoor deck, taking indoor-outdoor entertaining to the next level. The bedroom easily accommodates a double bed and bedside tables with a generous built-in robe. A spacious bathroom and laundry are entered through another sliding door. A pitched ceiling and strategically placed long glass windows bring light deep into the home.
A look to the exterior
With its striking dark Colorbond steel roof, The Swan embodies modern elegance. Designed to seamlessly blend into any environment, this model offers a unique lifestyle experience.
The absence of guttering makes it perfect for leafy surroundings, while its sturdy construction enhances its resistance to bushfires.
The front deck, adorned with vertically applied timber, complements the sleek design, creating a welcoming entrance. Step inside through the sliding glass doors, and you’ll find a spacious dining area bathed in natural light, beckoning you to relax and unwind.
Explore other Redipods models
The Avon
Despite its small footprint, the Avon is perfect for transforming your dream country getaway, as an investment property, backyard office, or guest house.
The Fitzroy
The Fitzroy is a firm favourite and is designed for a holiday home, a backyard retreat, extra space for growing families, grandparents, farm stay or visitors.
The Blackwood
The Blackwood optimises clever usage of space and light and is perfect as a holiday home, a kids retreat, or extra space for growing families or visitors.
The Gasgoyne
Our largest model, the Gascoyne has a classic contemporary form and flexible layout. This family-friendly cabin is ideal for a winery, bush block, or caravan park.
The Franklin
Meet our pocket rocket, the Franklin, integrating a flexible floor plan. An ideal studio, exercise space, home office, or extra bedroom.
The Canning
Architecturally designed, the Canning optimises open-plan living space. It’s the ideal Airbnb, coastal weekender, an office, or teenage retreat.
