The Gascoyne
Our largest Redipods cabins with a flexible layout
The Gascoyne
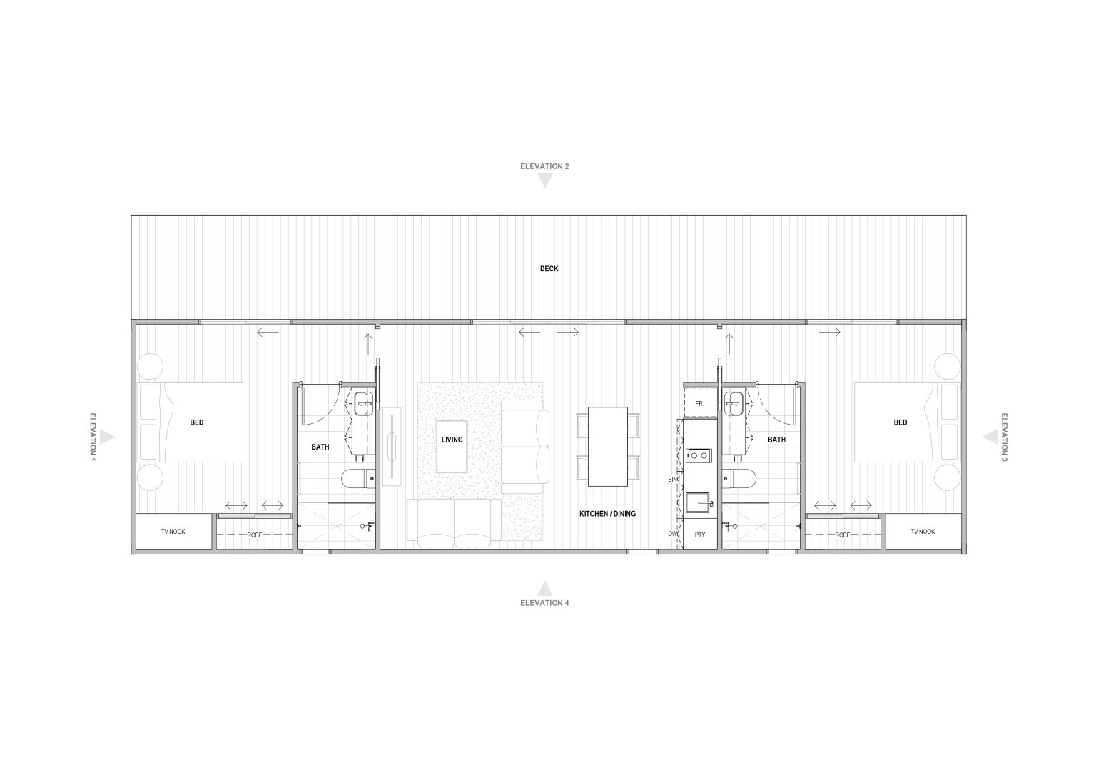
- Configuration: 2 bedrooms + 2 bathrooms
- Building Size: Size: 69.8sq/m
- Overall Size: Size: 100.8sq/m
Our largest cabin, the Gascoyne has a classic contemporary form and flexible layout. This family-friendly cabin is ideal for growing families, a granny flat, an Airbnb, or a dwelling at a caravan park.
Bring your Gascoyne to life
Customise your Gascoyne and make it your own. This versatile Redipods layout brings together two private bedrooms and a welcoming open-plan living area. Choose your finishes and features and add your own touch to the kitchen, dining and lounge space, with a generous bathroom in the centre and bedrooms on either side.
Click below to begin customising!
Combined living, modular to your needs
Through smart design and sliding glass doors, this cabin feels open to the outdoors. Recognising the need for private and communal spaces, its shared central open plan living area comprising kitchen, dining space and living room is flanked by a bedroom on each side with a functional L-shaped ensuite, robe and TV nook. Pitched ceilings soar upwards, giving it a sense of spaciousness. Customisation allows you to create contemporary compositions that echo its monochromatic colour palette.
A look to the exterior
The Gascoyne’s barn-like form comprises a pitched roof and walls wrapped in black Colorbond steel softened with vertical timber-clad ends for a warm, textured and minimal home. The roof is devoid of gutters, making it ideal for bushfire-prone areas. The dwelling is entered through central glass sliding doors that invite you into the shared living spaces. Both bedrooms are entered via this space and through full-length glass sliding doors that spill onto the deck.
Explore other Redipods models
The Avon
Despite its small footprint, the Avon is perfect for transforming your dream country getaway, as an investment property, backyard office, or guest house.
The Fitzroy
Our newest Redipods model, the Fitzroy is perfect for a family retreat, multiple dwelling sites such as wineries, camp sites and more. Designed to maximise light & space.
The Blackwood
The Blackwood cabin optimises clever usage of space and light and is perfect as a holiday home, a kids retreat, or extra space for growing families or visitors.
The Swan
What the Swan cabin lacks in magnitude more than makes up for in great design. It is the perfect nature getaway or backyard bunker for teens.
The Franklin
Meet our pocket rocket, the Franklin, integrating a flexible floor plan. An ideal studio, exercise space, home office, or extra bedroom.
The Canning
Architecturally designed, the Canning optimises open-plan living space. It’s the ideal Airbnb, coastal weekender, an office, or teenage retreat.
