The Ferguson
Designed for Comfort
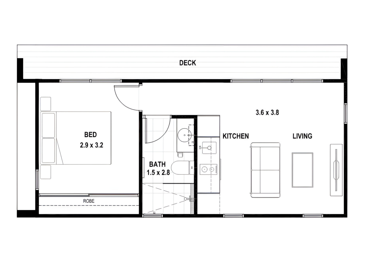
The Ferguson
- Configuration: 1 bedroom + 1 bathroom
- Building Size: 36.1 sq/m
- Overall Size: 52.2 sq/m
Designed for compact yet comfortable living, the Ferguson makes the most of every square metre. The open-plan layout combines kitchen, dining, and living areas in one efficient, light-filled space that connects seamlessly to the deck. Thoughtfully planned and carefully finished, this design delivers everything you need for modern living in a smart, streamlined footprint.
Bring your Redipods to life
Customise your Redipods and make it your own. Choose your finishes and features, from shuttered vertical windows to glass sliding doors that frame the view and invite natural light. Add your own touch to the kitchen, dining and lounge space, with a generous bathroom in the centre and bedrooms on either side, each with built in robes and TV nooks ready to tailor to your lifestyle.
Live small, love big
A compact one-bedroom design that delivers everything needed for comfortable, modern living. The open-plan kitchen and living area create a light, connected space that flows out to a generous deck. The bedroom includes a built-in robe, and the central bathroom is efficiently planned with quality fittings and finishes.
Ideal as a private retreat, guest suite, or short-stay accommodation, The Ferguson combines thoughtful design with a small footprint.
Explore other Redipods models
The Blackwood
The Blackwood cabin optimises clever usage of space and light and is perfect as a holiday home, a kids retreat, or extra space for growing families or visitors.
The Fitzroy
The Fitzroy cabin is our newest Redipods model and is built perfectly for a holiday home, a retreat, or extra space for growing families or visitors.
The Beaufort
This open-plan design and clean circulation make it ideal for both short-term stays and small permanent residences, offering comfort and simplicity in a well-proportioned footprint.
The Swan
What the Swan cabin lacks in magnitude more than makes up for in great design. It is the perfect nature getaway or backyard bunker for teens.
The Franklin
Meet our pocket rocket, the Franklin, integrating a flexible floor plan. An ideal studio, exercise space, home office, or extra bedroom.
The Canning
Architecturally designed, the Canning optimises open-plan living space. It’s the ideal Airbnb, coastal weekender, a office, or teenage retreat.
