The Murchison
Contemporary with a low maintenance footprint
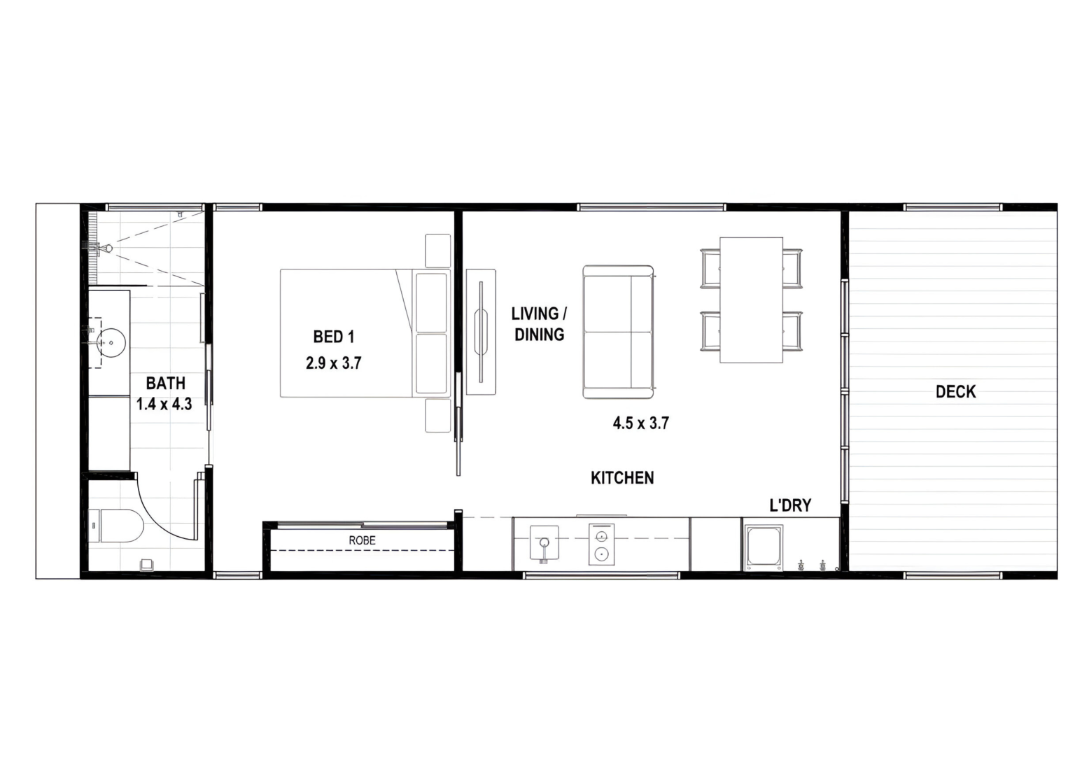
The Murchison
- Configuration: 1 bedroom + 1 bathroom
- Building Size: 41.4 sq/m
- Overall Size: 52.7 sq/m
A spacious one bedroom design that combines comfort and functionality. Layouts, finishes, and fittings can be tailored to reflect personal style or site requirements, from reconfiguring the floor plan to selecting preferred materials and colours.
Bring your Redipods to life
Customise your Redipods and make it your own. Choose your finishes and features, from shuttered vertical windows to glass sliding doors that frame the view and invite natural light. Add your own touch to the kitchen, dining and lounge space, with a generous bathroom in the centre and bedrooms on either side, each with built in robes and TV nooks ready to tailor to your lifestyle.
All the essentials of modern living
The open-plan living, dining, and kitchen area creates a generous sense of space, flowing directly onto a private deck that extends the living area outdoors. The bedroom includes a built-in robe and connects to a full-sized bathroom. With a dedicated laundry and efficient layout, this design offers all the essentials of modern living in a compact, low-maintenance footprint.
The open-plan design and clean circulation make it ideal for both short-term stays and small permanent residences, offering comfort and simplicity in a well-proportioned footprint.
Explore other Redipods models
The Blackwood
The Blackwood cabin optimises clever usage of space and light and is perfect as a holiday home, a kids retreat, or extra space for growing families or visitors.
The Fitzroy
The Fitzroy cabin is our newest Redipods model and is built perfectly for a holiday home, a retreat, or extra space for growing families or visitors.
The Beaufort
This open-plan design and clean circulation make it ideal for both short-term stays and small permanent residences, offering comfort and simplicity in a well-proportioned footprint.
The Swan
What the Swan cabin lacks in magnitude more than makes up for in great design. It is the perfect nature getaway or backyard bunker for teens.
The Franklin
Meet our pocket rocket, the Franklin, integrating a flexible floor plan. An ideal studio, exercise space, home office, or extra bedroom.
The Canning
Architecturally designed, the Canning optimises open-plan living space. It’s the ideal Airbnb, coastal weekender, a office, or teenage retreat.
